
Coleman Hills – Parcel 6 | Land & Build Package
1018 Coleman Hills Drive
Coleman Hills – a premier gated community in gorgeous SW Medford. This meticulously designed rural living experience is the definition of private, rural luxury! Two lots have sold and are in phases of construction, with utilities on site and septic approved this lot is prepped for building.
Lot 6 enjoys a more territorial view – the breadth of view from the building site encompasses the high mountain ridge across the Coleman Creek valley below and looks further out to the vineyards and farms dotting the landscape near Carpenter Hill and S Stage roads.
Lot Details
- Access: Via gravel driveway off of Coleman Creek Rd
- Zoning: WR
- Elevation: 2080 – 2400 (approx)
- Acres: 20
- Domestic Water: Private Well (JACK_65463) – 46GPM
- Sanitation: ATT System Approved
- Electricity: Power Available (to be developed within construction)
- Internet: StarLink Available
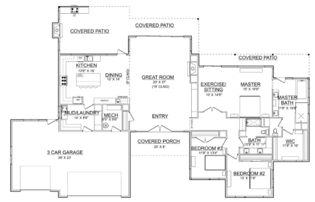
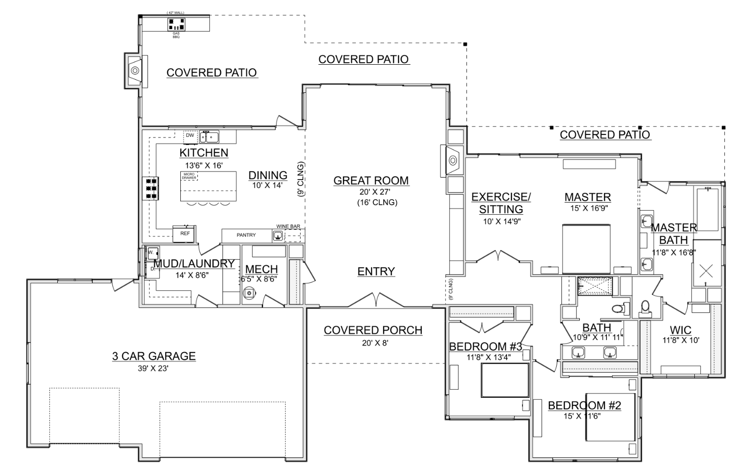
This modern, efficient home prioritizes natural light and features outdoor entertainment space to take advantage of the stunning views.
- Living Space: 2,778 Square Feet
- Garage Space: 912 Square Feet
- Bedrooms: 3 Bedrooms
- Baths: 2 Bathrooms
- Large Covered Patio
1018 Coleman Hills Drive – Parcel 6 Video
Click Photos to Enlarge
Click Photos to Enlarge
Images and information are for Illustrative purposes only. Actual design and construction will be based on client Input with consideration of the terrain.
Three bedroom, two bathroom home with breathtaking views from primary bedroom, living room, kitchen, and deck.
- Earth Advantage platinum certification standards
- High Efficiency building windows and building envelope
- 5 stage Heat Pump High Efficiency HVAC with air purification
system - Custom built-ins throughout home
- Outdoor entertaining area with BBQ and fireplace
- Home automation features; garage door, thermostat, lighting and security cameras
- High-efficiency Heat Pump & water heater with recirculating line
- Large plank Hardwood flooring throughout
- Interior and Exterior Stone Fireplace with custom reclaimed wood mantel
- Exterior siding to feature stucco and cedar accents
- Single level construction with oversized 3 car garage
- Radiant flooring heating in primary bath
- High End custom cabinetry with quartz Countertops and
gourmet appliances package - High-efficiency LED lighting and low volt panel
- Standing seam metal roof
- Custom tile showers with free standing tub in master
- Solar energy ready
- 400 amp electrical service with tie in for back-up generator
- Electrical vehicle changing station in garage
- Wildfire-conscious design features and materials
Inspiration
Additional Packages & More Information
Interested in this Build Package?
Want to customize your dream home?
Wish to talk to someone about this project?
Contact Us
Asher Homes
Martin Group
More Information available at:
www.colemanhills.com
Lots Available

Parcel One
23-ACRE CUSTOM HOME SITE
Parcel Two
20-ACRE CUSTOM HOME SITE
Parcel Three
15-ACRE CUSTOM HOME SITE
Parcel Four SOLD
62-ACRE CUSTOM HOME SITESOLD
Parcel Five
60-ACRE CUSTOM HOME SITE
Parcel Six
20-ACRE CUSTOM HOME SITE
Parcel Seven SOLD
20-ACRE CUSTOM HOME SITESOLD
3D Tour the Inspirational Home
Inspirational Design by Carlos Delgato Architect
Partnering with Martin Outdoor Property Group
Born from a passion for the land and a love of the Pacific Northwest, we are one of Oregon’s premier outdoor property real estate teams: a hand-selected group of full-time brokers who share a deep appreciation for rural properties. We combine a passion for the outdoors with a love of helping people. The decision to buy or sell real estate is one of the biggest decisions in a person’s life. We are honored to stand alongside our clients and be their trusted partners and advisers.
For us, brokerage is not composed of transactions; it is composed of relationships — either beginnings, as we find a perfect match between buyers and property, or transition, as we help sellers move forward to another season of their life. This is what drives us. Each piece of land has a story to tell and we are honored to get to share that story. We work relentlessly to understand our clients’ needs, to know the land, and to communicate the opportunities it holds.
Our work is a process of sharing what we love and using our expertise to deliver results for your home, land, or your next real estate purchase. The foundation we build on is faith, family, and community, and the tangible and intangible values of owning real estate. We rely on each other and our collective experience, and thrive in the camaraderie we share as a team. We strive to be excellent stewards of both the land and of our clients’ goals and dreams.
Through innovative marketing strategies and a relentless work ethic, our team delivers results. Our track record of excellence derives from collective experience in the industry and extensive knowledge of outdoor properties.”

























